Projeto

Projeto

Na LFAR, somos especializados em fornecer soluções integradas de segurança eletrônica, incluindo câmeras de vigilância, alarmes, controle de acesso, cancelas, catracas, interfones, PABX, redes e antenas coletivas. Com um compromisso inabalável com a excelência, oferecemos projetos completos e personalizados que garantem a máxima proteção e eficiência para residências, empresas e indústrias.

Projetos de Segurança Eletrônica LFAR

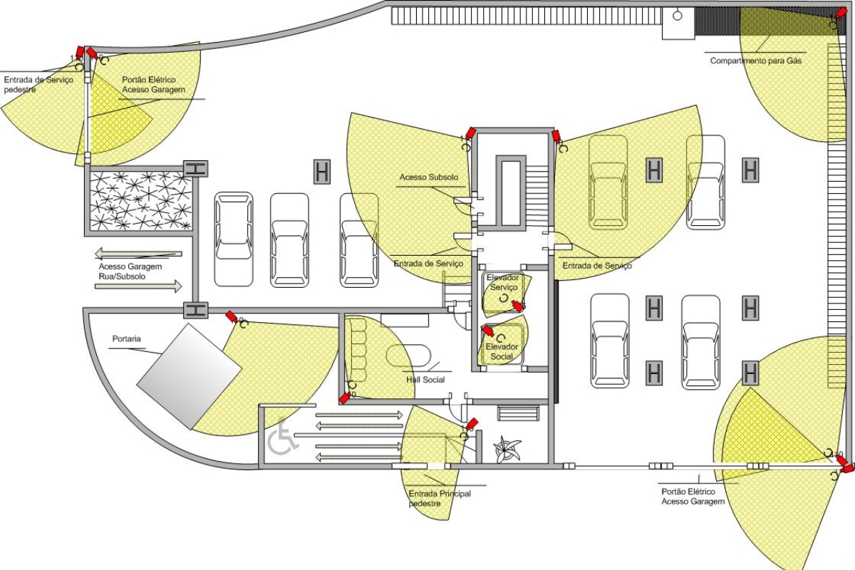
Nosso processo de desenvolvimento de projetos de segurança eletrônica é meticuloso e abrangente, garantindo que todas as suas necessidades de segurança sejam atendidas com precisão. A seguir, apresentamos as principais etapas de nossos projetos:

1. Projeto Executivo:

  • Análise Inicial: Realizamos uma avaliação detalhada do local e das suas necessidades específicas de segurança.
  • Definição de Objetivos: Trabalhamos em estreita colaboração com você para definir os objetivos do projeto e os requisitos de segurança.
  • Proposta Personalizada: Desenvolvemos uma proposta personalizada que detalha as soluções recomendadas, incluindo a seleção de equipamentos e tecnologias apropriadas.

2. Projeto Detalhado:

  • Planejamento Preciso: Criamos um plano detalhado que inclui o layout dos sistemas de segurança, a localização exata dos equipamentos e a integração com as infraestruturas existentes.
  • Especificações Técnicas: Fornecemos especificações técnicas completas para todos os componentes do sistema, garantindo que cada elemento atenda aos padrões mais elevados de qualidade e desempenho.
  • Documentação Completa: Elaboramos a documentação necessária, incluindo diagramas, esquemas elétricos e planos de instalação.

3. Implementação e Instalação:

  • Equipe Especializada: Nossa equipe de técnicos qualificados realiza a instalação dos equipamentos com precisão e eficiência.
  • Integração de Sistemas: Garantimos a integração perfeita de todos os sistemas de segurança, proporcionando um funcionamento harmonioso e confiável.
  • Testes e Comissionamento: Realizamos testes rigorosos para verificar o desempenho dos sistemas e garantir que tudo esteja funcionando conforme o planejado.

Soluções Abrangentes

Na LFAR, oferecemos uma gama completa de soluções de segurança eletrônica para atender a todas as suas necessidades:

Câmeras de Vigilância:

  • Câmeras Internas e Externas: Monitoramento eficaz tanto em ambientes internos quanto externos.
  • Tecnologia Avançada: Câmeras IP, câmeras analógicas e speed domes com recursos de alta definição e visão noturna.

Alarmes:

  • Alarmes Monitorados e Não Monitorados: Sistemas de alarme que alertam imediatamente sobre quaisquer intrusões.
  • Sensores Avançados: Sensores de movimento, portas, janelas e detecção de fumaça.

Controle de Acesso:

  • Sistemas de Controle de Acesso: Biometria, RFID, reconhecimento facial, QR code e LPR (Leitura de Placas de Veículos).
  • Soluções para Pedestres e Veículos: Cancelas, catracas e portões automáticos.

Interfones e PABX:

  • Interfones e Vídeo Porteiros: Comunicação clara e segura com visitantes.
  • Sistemas PABX: Soluções de telefonia para uma comunicação interna eficiente.

Redes e Antenas Coletivas:

  • Infraestrutura de Redes: Projetos de redes estruturadas para suportar todos os sistemas de segurança.
  • Antenas Coletivas: Soluções para a distribuição de sinais de TV e internet em condomínios e grandes áreas.

Manutenção e Suporte

Além de desenvolver e implementar projetos de segurança, oferecemos serviços completos de manutenção preventiva e corretiva. Nossa equipe de suporte está sempre disponível para garantir que seus sistemas de segurança operem de maneira confiável e eficiente.